a

Menu

密集地でものびのび育む26坪狭小住宅

  1. Home
  2. スタディープラン1 密集地でものびのび育む26坪狭小住宅

30坪の敷地を活かしきる光と家族が繋がる家

|密集地でのびのびと育む26坪の狭小住宅

敷地条件

・密集住宅街の土地

  4方向ともに2階建ての住宅が建っている

・北側接道

  前面道路幅員は4m

・土地30坪(約9m×約11m)

  日照が期待できないとされている土地
・法定建蔽率 60%

どこにでもありそうな日照条件が悪く狭い土地

住宅が密集する30坪の敷地において北側接道という悪条件でもプライバシーを確保しながら「いかに子供たちが健やかに家族が一体感を持って暮らせるか」を追求した事例です。

設計のポイント: 狭小地であっても、垂直方向の繋がり(吹き抜け)と水平方向の抜け(屋上デッキ)を組み合わせることで、面積以上の豊かさを創出しました。ライフステージの変化に柔軟に対応できる、サステナブルな都市型住宅の提案です。

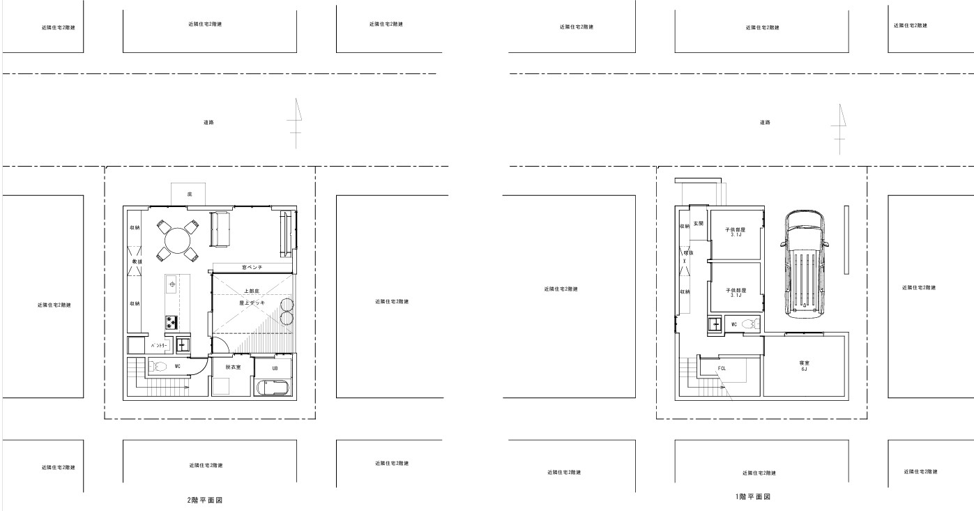
屋上デッキを中心に広がる遊びと学びのLDK

LDKの主役は、外部からの視線を遮りつつ空へ開かれた「屋上デッキ」です。

リビングとフラットに繋がるこの場所は、子供たちにとって格好の遊び場。夏にはプールを出して水遊びをしたり、気候の良い日にはデッキで宿題をしたりと、家の中にいながら外を感じられる開放的な日常が繰り広げられます。

吹き抜けがつくる「家族の気配」

ダイニングキッチンの床に設けた吹き抜けは、1階と2階を緩やかに繋ぐコミュニケーションの要です。

  • 2階で家事をする親と、1階の子供部屋で遊ぶ兄弟。

  • 吹き抜けを介して「ご飯だよ」と声を掛け合い、階段を駆け上がる音や笑い声が家全体に響きます。 個室に閉じこもることなく、どこにいても家族の存在を感じられる一体感のある住空間を実現しました。

季節の光をコントロールするパッシブデザイン

都市部の限られた空間でも、自然エネルギーを最大限に活用する設計を施しています。

  • 冬の日射取得: 南面からの直射日光を積極的に取り込み、冬場の暖房負荷を低減。朝、子供たちが起きてくる時間帯からリビングを自然な暖かさで満たします。

  • 夏の日射遮蔽: 屋上デッキの庇や窓配置により、夏場の厳しい熱をカット。風の通り道を計算することで、エアコンに頼りすぎない健やかな室内環境を整えています。

30年後も暮らしやすい可変プラン

現在

30年後

子供の成長と、その後の夫婦の老後を見据えた「可変性」もこの家の重要なテーマです。

現在は1階を左側のように個室(子供部屋・寝室)としていますが、将来的に階段の昇降が負担になる時期を見据え、廊下幅を広げた右側のように「1階ダイニング」へのリノベーションがスムーズに行えるよう、あらかじめ構造を配慮しています。

ルームツアー・プラン

1階床面積 16坪

2階床面積 12坪

延べ床面積 28坪

あなたの子育てのステージでどんな生活をしたいですか?
まずはお話しませんか?
土地探しのお手伝いからでもなんでも気軽に相談ください