昨日のブログでご紹介した、住宅密集地の北側接道の敷地に建つファミリー向け住宅プラン。
実はこのプランには、もう一つ大切な設計の工夫があります。
それは
将来「1階リビング」に変更できる住まいとして設計していることです。

若い頃は快適な「2階リビング」
住宅密集地では、周囲の建物の影響で
1階に十分な日射が入りにくいことが多くあります。
そのため今回のプランでは、
光と風を取り込むために2階リビングとしています。
・明るいリビング
・外からの視線を避けられる
・屋上デッキとのつながり
こうした点から、若い世代の暮らしにはとても快適な住まい方です。
しかし、老後には階段が負担になることも
ただし、ずっと2階リビングで生活するとなると、
年齢を重ねたときに階段の昇り降りが負担になる可能性があります。
子どもたちが独立し、
夫婦二人の暮らしになったとき。
その頃には、
1階だけで生活が完結する住まいの方が安心です。
そこでこのプランでは、
将来の暮らし方まで見据えた設計をしています。

将来「1階リビング」にできる設計
実はこのプランでは、最初から
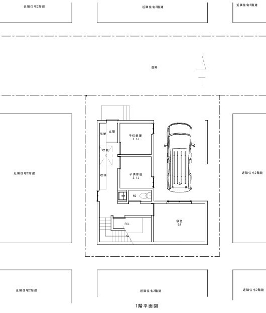
・廊下を少し広めに確保
・玄関を引き戸にする
・耐震壁の配置を計画
といった工夫をしています。
これらはすべて、
将来1階リビングへ変更することを想定した設計です。
設計段階で構造や動線を考えておくことで、
将来の改修も現実的に行えるようになります。
屋上デッキを吹き抜けにすることで光を確保
さらに、2階に設けている屋上デッキは、
将来必要になれば床を抜いて吹き抜けにすることも可能です。
そうすることで、
1階まで光がしっかり届く住まいになります。
住宅密集地でも、
工夫次第で明るい1階リビングを実現できます。
デイサービスと組み合わせた「終の棲家」
1階リビングに変更すれば、
・1階だけで生活が完結
・バリアフリー対応
・介護サービスとも相性が良い
といった暮らし方も可能になります。
将来、デイサービスなどのサポートを利用しながら、
住み慣れた家で暮らし続けることも現実的になります。


変化する暮らしに寄り添う設計
家は完成した瞬間がゴールではありません。
・子育ての時期
・夫婦二人の暮らし
・老後の暮らし
ライフステージによって、
住まいに求められる役割は大きく変わります。
だからこそ私たちは、
今だけでなく、将来の暮らしまで見据えた設計提案を大切にしています。
+Pアーキテクツでは、
土地条件だけでなく、人生の変化まで含めた住まいづくりをご提案しています。




